單母線接線和雙母線接線優缺點和接線圖解
添加時間 2019-03-02
返 回
1.單母線接線
(1)只有一組母線的接線 ,進出線并接在這組母線上。
單母線接線圖見圖1。圖中倒閘操作:如對饋線LI送電時,須先合上隔離開關QS2和QS3,再投人斷路器QF2;如欲停止對其供電,須先斷開QF2,然后再斷開QS3和QS2。即隔離開關相對于斷路器而言要“先通后斷”,母線隔離開關相對于線路隔離開關也要“先通后斷”。接地開關QS4是在檢修電路和設備時合上,取代安全接地線的作用。
單母線接線優點:簡單清晰、設備少、投資小、運行操作方便,且有利于擴建。
缺點:可靠性和靈活性較差。
應用:6~10kV配電裝置的出線回路數不超過5回; 35~63kV配電裝置的出線回路數不超過3回;110~220kV配電裝置的出線回路數不超過2回。
改進:單母線分段接線、單母線帶旁路接線。
(2)單母線分段接線:避免單母線接線可能造成全廠停電的缺點,提高供電可靠性及靈活性。見圖2。
單母線用分段斷路器QF1進行分段。兩段母線同時故障的幾率甚小,可以不予考慮。在可靠性要求不高時,亦可用隔離開關分段(QS),任一段母線故障時,將造成兩段母線同時停電,在判別故障后,拉開分段隔離開關,完好段即可恢復供電。分段的數目,取決于電源的數量和容量。段數分越多,故障時停電范圍越小,但使用斷路器的數量亦越多,且配電裝置和運行也越復雜,通常以2~3段為宜。這種接線方式廣泛用于中、小容量發電廠的6~10kV主接線和6~220kV變電所配電裝置中。
優點:對重要用戶可以從不同段引出兩回饋線,由兩個電源供電;當一段母線發生故障(或檢修),僅停該段母線,非故障段母線仍可繼續工作。
缺點:當一段母線或母線隔離開關故障或檢修時,接在該段母線上的回路必須全部停電;任一回路的斷路器檢修時,該回路必須停止工作。
(3)單母線分段帶旁路接線:檢修出線斷路器,不致中斷該回路供電。見圖3。
增設旁路母線W2和旁路斷路器QF2。旁路母線經旁路隔離開關QS3與出線連接。正常運行時,QF2和QS3斷開。當檢修某出線斷路器QF1時,先閉合QF2兩側的隔離開關,再閉合QF2和QS3,然后斷開QF1及其線路隔離開關 QS2和母線隔離開關QS1。這樣QF1就可退出工作,由旁路斷路器QF2執行其任務。即在檢修QF1期間,通過QF2和QS3向線路L2供電。當檢修電源回路斷路器期不允許斷開電源時,旁路母線還可與電源回路連接,此時還需在電源回路中加裝旁路隔離開關,圖中用虛線表示。
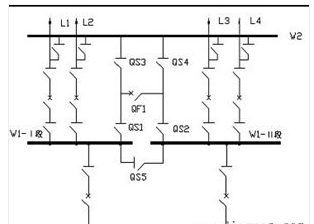
(4)單母線分段帶旁路母線接線:為節約建設投資。常以分段斷路器兼作旁路斷路器的接線。兩段母線均可帶旁路母線,正常時旁路母線W2不帶電,分段斷路器QF1及隔離開關QS1、QS2在閉合狀態,QS3、QS4、QS5均斷開,以單母線分段方式運行,見圖4。
2.雙母線接線
雙母線接線見圖5。具有兩組母線W1、W2。每回線路都經一臺斷路器和兩組隔離開關分別與兩組母線連接,母線之間通過母線聯絡斷路器QF(簡稱母聯)連接,每一個電源回路也是通過一臺斷路器和兩組母線隔離開關接在兩組母線上。
雙母線接線優點:可靠性和靈活性大大提高。
雙母線接線缺點:第一,閘操作比較復雜,在運行中隔離開關作為操作電器,容易發生誤操作。第二,尤其當母線出現故障時,須短時切換較多電源和負荷; 當檢修出線斷路器時,仍然會使該回路停電。第三,配電裝置復雜,投資較多經濟性差。
改進措施:采用母線分段; 增設旁路母線系統;
一臺半斷路器優點:供電可靠性和運行調度靈活性高;缺點:設備多,投資較大,二次控制接線和繼電保護 配置都比較復雜;應用在大型發電廠和變電所超高壓配電裝置。見圖6。
(1)只有一組母線的接線 ,進出線并接在這組母線上。
單母線接線圖見圖1。圖中倒閘操作:如對饋線LI送電時,須先合上隔離開關QS2和QS3,再投人斷路器QF2;如欲停止對其供電,須先斷開QF2,然后再斷開QS3和QS2。即隔離開關相對于斷路器而言要“先通后斷”,母線隔離開關相對于線路隔離開關也要“先通后斷”。接地開關QS4是在檢修電路和設備時合上,取代安全接地線的作用。
![]() 圖1 單母線接線圖 |
缺點:可靠性和靈活性較差。
應用:6~10kV配電裝置的出線回路數不超過5回; 35~63kV配電裝置的出線回路數不超過3回;110~220kV配電裝置的出線回路數不超過2回。
改進:單母線分段接線、單母線帶旁路接線。
(2)單母線分段接線:避免單母線接線可能造成全廠停電的缺點,提高供電可靠性及靈活性。見圖2。
![]() 圖2 單母線分段接線圖 |
優點:對重要用戶可以從不同段引出兩回饋線,由兩個電源供電;當一段母線發生故障(或檢修),僅停該段母線,非故障段母線仍可繼續工作。
缺點:當一段母線或母線隔離開關故障或檢修時,接在該段母線上的回路必須全部停電;任一回路的斷路器檢修時,該回路必須停止工作。
(3)單母線分段帶旁路接線:檢修出線斷路器,不致中斷該回路供電。見圖3。
![]() 圖3 單母線分段帶旁路接線示意圖 |
![]() 圖4 分段斷路器兼作旁斷路器的接線圖 |
(4)單母線分段帶旁路母線接線:為節約建設投資。常以分段斷路器兼作旁路斷路器的接線。兩段母線均可帶旁路母線,正常時旁路母線W2不帶電,分段斷路器QF1及隔離開關QS1、QS2在閉合狀態,QS3、QS4、QS5均斷開,以單母線分段方式運行,見圖4。
2.雙母線接線
雙母線接線見圖5。具有兩組母線W1、W2。每回線路都經一臺斷路器和兩組隔離開關分別與兩組母線連接,母線之間通過母線聯絡斷路器QF(簡稱母聯)連接,每一個電源回路也是通過一臺斷路器和兩組母線隔離開關接在兩組母線上。
雙母線接線優點:可靠性和靈活性大大提高。
雙母線接線缺點:第一,閘操作比較復雜,在運行中隔離開關作為操作電器,容易發生誤操作。第二,尤其當母線出現故障時,須短時切換較多電源和負荷; 當檢修出線斷路器時,仍然會使該回路停電。第三,配電裝置復雜,投資較多經濟性差。
改進措施:采用母線分段; 增設旁路母線系統;
一臺半斷路器優點:供電可靠性和運行調度靈活性高;缺點:設備多,投資較大,二次控制接線和繼電保護 配置都比較復雜;應用在大型發電廠和變電所超高壓配電裝置。見圖6。
![]() 圖5 雙母線接線圖 |
![]() 圖6 一臺半斷路器接線圖 |














